U gebruikt een verouderde internetbrowser.
We raden u aan om de meest recente internetbrowser te installeren voor de beste weergave van deze website.
Een internetbrowser die up to date is, staat ook garant voor veilig surfen.

Prachtige gelijkvloerse villa gelegen in een omheind en beveiligd resort - 30709 Costa Calida
Vraagprijs: € 674.500

Omschrijving

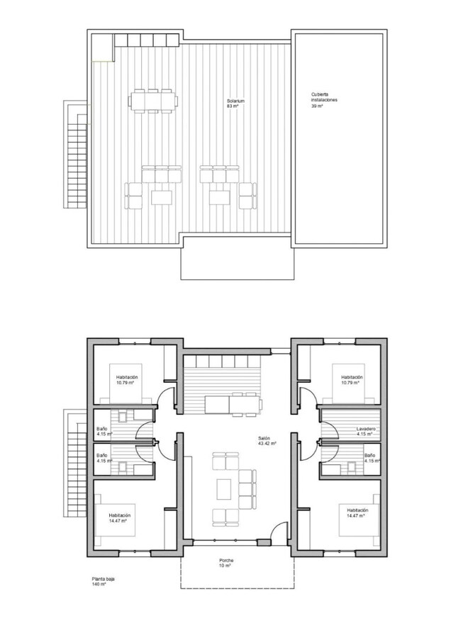
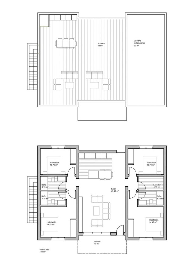
Luxe 2 gelijkvloerse nieuwbouw villa's in Santa Rosalia, Murcia.

De villa's zijn gebouwd op percelen van bijna 600 M2 elk, met privé zwembad van 30 M2, tuin en groot solarium op het dak.

Elke woning heeft 4 slaapkamers en 3 ingerichte badkamers en zijn ontworpen met een eigentijdse stijl en een open gepland concept, bestaande uit een volledig ingerichte keuken,
woonkamer en eetkamer.

De ontwikkeling is gelegen in Roldán (Murcia), in een omheind en beveiligd resort, opgenomen in een deelplan van 300.000 M2, omgeven door alle diensten, sportfaciliteiten en in de buurt van verschillende Golfbanen.

De woning zal voldoen aan de hoogste normen en zal worden uitgerust met:

Privé zwembad van 30 M2 met zonnedouche.
Pre-installatie voor verwarmde pomp.
Keuken volledig ingericht en uitgerust met verhoogde oven, ingebouwde magnetron, geïntegreerde vaatwasser, koelkast en afzuigkap.
Eiland in de keuken.
LED verlichting: binnen de woning (eetkamer, keuken, gangen en badkamers), evenals in de buitenruimtes.
Beklede kasten met laden.
Volledig ingerichte badkamers met hangend badmeubel en hangend toilet, spiegel met licht, douche met "regeneffect" en doucheschermen.
Pre-installatie voor gekanaliseerde airconditioning.
Zomerkeuken met schuifdeuren in solarium.
Pre-installatie voor wasmachine en stop-contact voor koelkast.
Zonnepaneel.
Parkeerplaats op het perceel.

Roldan zelf is een traditionele stad met alle lokale voorzieningen die u nodig heeft, zoals supermarkten, restaurants, bars, kliniek, apotheek, politiebureau, benzinestation, monteurs, tandartsen, artsen en nog veel meer.

De nabijgelegen golf resorts van La Torre, & Terrazas zijn gemakkelijk bereikbaar, Corvera Airport ligt op 15 minuten afstand en de stranden van de Mar Menor op slechts 20 mi-nuten rijden.

Uw Spaanse droom begint hier!
Neem vandaag nog contact met ons op voor een bezichtiging of vrijblijvend advies.

Wij begeleiden u graag verder bij de aankoop van uw droomwoning in Spanje.


Kenmerken

Algemeen

Adres:Costa Calida
Referentie:HH-250778
Vraagprijs:€ 674.500
Type:Villa
Perceeloppervlakte:567 m²
Bewoonbare opp.:140 m²
Type constructie:Andere

Indeling

Slaapkamers:4
Badkamers:3
WC:Ja
Woonkamer:Ja
Keuken:Ja
Terras:Ja
Tuin:Ja
Parking:Ja

Neem vrijblijvend contact op

Wenst u meer informatie of het pand te bezoeken? Contacteer ons vrijblijvend voor meer informatie. 
Wanneer wij uw aanvraag hebben ontvangen zullen wij verder contact met u opnemen. 


U moet akkoord gaan met het privacybeleid van deze website
* Verplicht in te vullen

Uw makelaar

Steven De Buck

Steven De Buck

+32 (0) 479 09 09 18 steven@sdb.realestate
Niet gevonden wat u zocht? Schrijf u dan vrijblijvend in en blijf op de hoogte van ons recentste aanbod.
Schrijf u in
Terug naar boven
Sluit menu SDB Real Estate